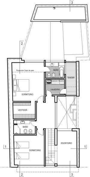
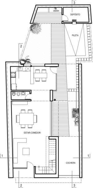
Colegio de Arquitectos de Santa Fe

Concurso Premio Anual de los Arquitectos

Concurso Premio Anual de los Arquitectos

Galería de imágenes